Aluminiowy sufitowy profil szczelinowy. C-2 kolor biały
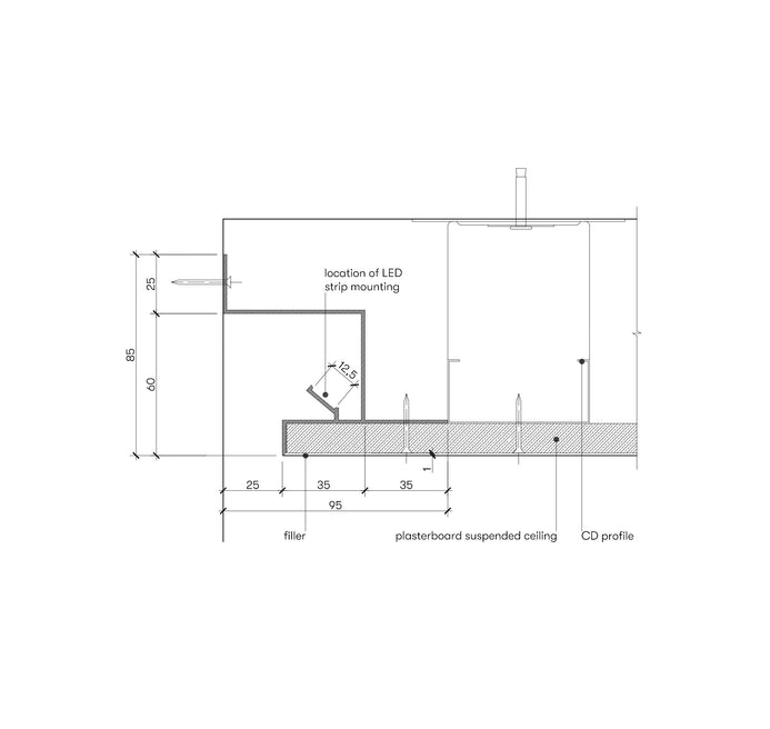
Profil sufitowy do uzyskania efektu shadowline z zachowaną stałą szczeliną 25 mm od ściany.
Geometria profilu umożliwia wykonanie podświetlenia światłem odbitym.
Ta technika zapewnia idealny gradient światła na ścianie bez konieczności stosowania plastikowego dyfuzora.
Ten profil pozwala znacząco uprościć montaż oraz poprawić jakość wykończenia typu shadowline pod każdym względem.
Program magazynowy obejmuje produkcję z malowaniem na biało (RAL 9003). Inne kolory RAL dostępne na zamówienie.
Sposób montażu – mechaniczny.
Wymiary: 2500х85х100 (D×W×S) mm
Uwaga! Jeśli chcesz zamówić malowanie, kliknij przycisk „Chcę pomalować na swój kolor” na tej stronie, a następnie „Kontynuuj” po wpisaniu adresu e-mail i wyślij zapytanie. Skontaktujemy się z Tobą, aby omówić szczegóły.
 
















 
                 
                 
                 
                 
                