€18,00
  
        Per stripe [ 2,5 løpemeter | 6.56 løpefot ]
      
    
        
    
    
        Du sparer: 
        
        (
            
        %)
    
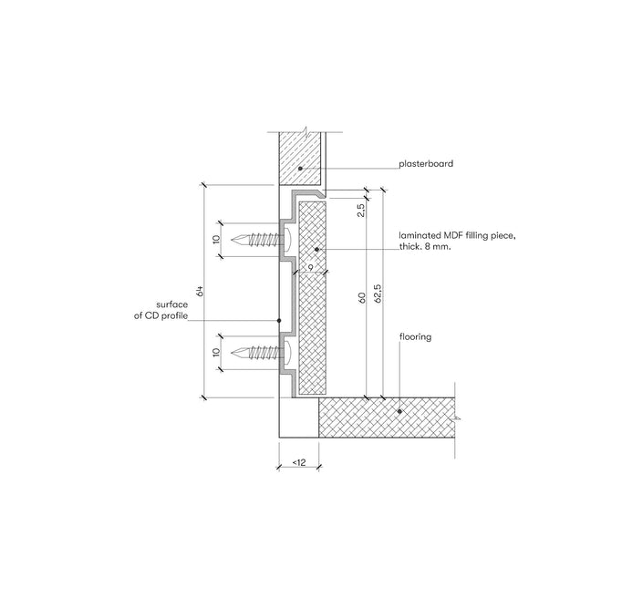
        Aluminium "listeløst" system P4-60M
På lager — Rask levering
        En innfelt gulvlist (sokkel) eller det såkalte "listfrie" systemet. Mekanisk montering. Kan kombineres med ulike laminerte MDF-fyllstykker. Fyllstykkehøyde 58 mm.
Det er også mulig å kombinere det med aluminiumsgulvlisten (sokkelen) P-5-60 som et fyllstykke. Lagerprogrammet inkluderer produksjon uten belegg (naturlig aluminium).
Dimensjoner: 2500×62,5×13,2 (L×H×B) mm
 




 
                 
                 
                 
                 
                