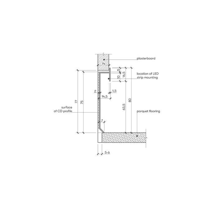
Alumiiniumist süvistatav põrandaliist (sokkel) P-2-80
Seinaga tasa paigaldatav alumiiniumist sokliliist (plint) on laialdaselt kasutusel nii elamute kui ka avalike hoonete sisekujunduses. Profiili geomeetria võimaldab paigaldada LED-ribasid, mis on tänapäeval väga levinud lahendus. Ühtlase valgusefekti saavutamiseks soovitatakse LED-riba liimida profiili vertikaalselt. Sokliliist (plint) paigaldatakse eelnevalt ettevalmistatud süvendisse kipsplaadist vaheseinas või valeseinas. Paigaldusviis – liim.
Toodetakse kõrgustes 60, 80 ja 100 mm. Laoprogramm sisaldab toodangut anodiseeritud kattega (hõbedane värv). RAL pulbervärvimine on saadaval eritellimusel. Kvaliteetne kate (15 mikronit anodeeringut) tagab niiskus- ja kodukeemikakindluse.
Mõõdud P-2-80: 2500x80x14,5 (PхKxL) mm
Tähelepanu! Kui soovite tellida värvimist, klõpsake sellel lehel nupul „Soovin värvida oma värviga” ja seejärel „Jätka”, sisestage oma e-post ja saatke päring. Võtame teiega ühendust, et arutada detaile.

















































