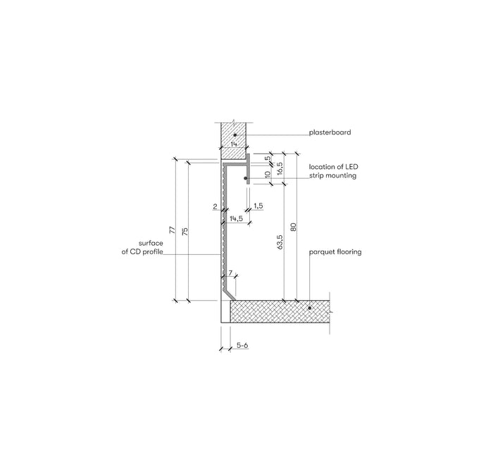
لوح التزيين الألمنيوم المثبت بشكل متساوي (القاعدة) P-2-80
يستخدم البلينث المصنوع من الألمنيوم والمثبت بشكل متساوٍ على نطاق واسع في الديكور الداخلي للمباني السكنية والعامة. تسمح هندسة الملف الشخصي بتركيب شرائط إضاءة LED، وهو حل شائع جدًا في الوقت الحاضر. يُنصح بلصق شريط LED داخل الملف الشخصي بشكل عمودي لتحقيق تأثير إضاءة متجانس. يتم تركيب البلينث في تجويف مُعد مسبقًا في جدار من الجبس بورد أو جدار وهمي. طريقة التركيب – لاصق.
يتم تصنيعها بارتفاعات 60 و80 و100 مم. يشمل برنامج المخزون الإنتاج بطبقة مؤكسدة (لون فضي). الطلاء بالبودرة حسب RAL متاح عند الطلب. الطلاء عالي الجودة (أنودة بسماكة 15 ميكرون) يوفر مقاومة للرطوبة والمواد الكيميائية المنزلية.
الأبعاد P-2-80: 2500×80×14.5 (طول×ارتفاع×عرض) مم
انتباه! إذا كنت ترغب في طلب طلاء، اضغط على زر ‘أرغب في الطلاء بلوني’ في هذه الصفحة ثم ‘متابعة’ بعد إدخال بريدك الإلكتروني وإرسال الطلب. سنتواصل معك لمناقشة التفاصيل.
 

















































